Descrizione

COGOLETO vendita appartamento con pertinenze:
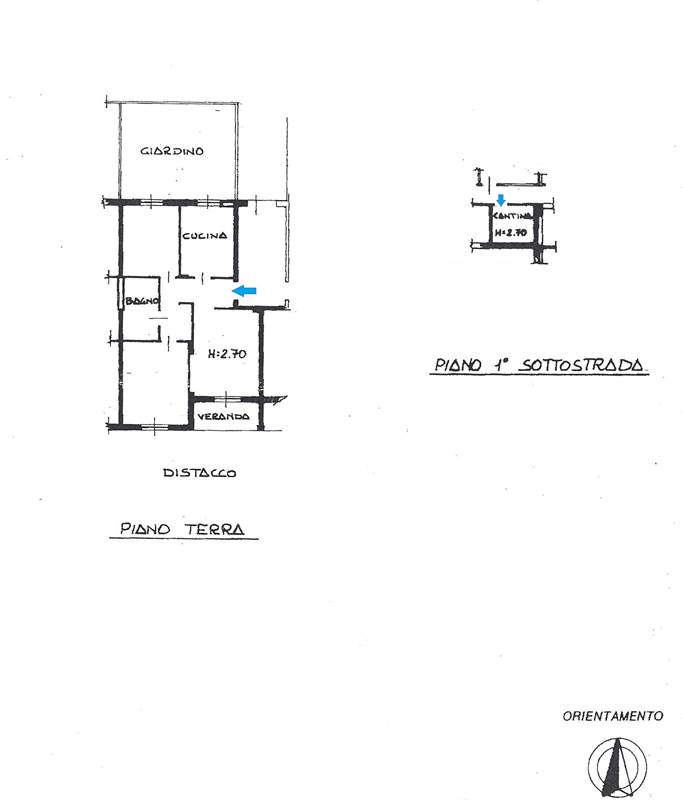
a pochi passi dal mare, in una zona residenziale tranquilla, la più tranquilla e più verde di Cogoleto, proponiamo in vendita appartamento posto al piano terra, completo di cantina, box auto e posto macchina di proprietà.
Così composto: ingresso in soggiorno avente accesso a grande loggia, bagno, due camere da letto e cucina con grande terrazzo/giardino.
Si presenta in ottime condizioni, pronto per essere abitato.
Il riscaldamento è autonomo. Parti comuni in ordine.
€ 280.000 + eventuale garage.
Ottima opportunità, contattaci per ulteriori informazioni o per fissare direttamente una visita.


Caratteristiche principali

Stato Immobile
Ristrutturato
Grado
Medio
Posizione
Collina
Panorama
Vista Aperta
Orientamento
Sud Nord
Lati Liberi
2
Giardino
Privato
Arredi
Non Arredato
Tipo Soggiorno
Soggiorno
Tipo Cucina
Abitabile
Riscaldamento
Autonomo
Tipo Riscaldam.
Caldaia
Tipo Impianto
Termosifoni
Fonte Energetica
GPL
Acqua Calda
Autonoma
Infissi
Alluminio Doppio Vetro
Serramenti
Ottimo
Persiana
Tapparella Metallo
Pavim. Giorno
Ceramica
Pavim. Notte
Ceramica
Pavim. Cucina
Ceramica
Pavim. Bagno
Ceramica
Accessori: Doppi Vetri, Parco Condominiale, Porta Blindata, Ripostiglio, Veranda, Zanzariere

Mappa

via visconti prasca , Cogoleto (GE)

Cookie preference